| 価格 |
2,180万円 | 交通 | 名鉄名古屋本線 「矢作橋」駅 徒歩11分 |
|---|---|---|---|
| 土地面積/坪数 | 152.45㎡ / 46.11坪 | 所在地 | 愛知県岡崎市矢作町字小河原 |
| 建ぺい率 | 70% | 容積率 | 200% |
売地
| 価格 |
2,180万円 | 交通 | 名鉄名古屋本線 「矢作橋」駅 徒歩11分 |
|---|---|---|---|
| 土地面積/坪数 | 152.45㎡ / 46.11坪 | 所在地 | 愛知県岡崎市矢作町字小河原 |
| 建ぺい率 | 70% | 容積率 | 200% |
「利回り」は、当該不動産の1年間の予定賃料収入の不動産取得対価に対する割合であり、公租公課その他当該物件を維持するために必要な費用の控除前のものです。
また、予定賃料収入が確実に得られる事を保証するものではありません。

名鉄名古屋本線「矢作橋」駅まで徒歩約14分!解体更地渡し!建築条件なしなのでお好きなハウスメーカーで建てられます♪

※地図上の物件位置は近隣に物件が所在することを表すものであり、実際の物件所在地とは異なる場合がございます。
0564-73-2012
営業時間:09:00~18:00 / 定休日:日曜日
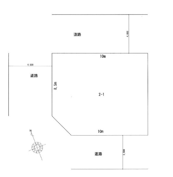
| 所在地 | 愛知県岡崎市矢作町字小河原 | ||
|---|---|---|---|
| 交通 | 名鉄名古屋本線 「矢作橋」駅 徒歩11分 | ||
| 価格 | 2,180万円 | 坪単価 | 47.28万円 |
| 土地面積 | 152.45㎡ | 建築条件 | 無 |
| 土地権利 | 所有権 | 建ぺい率/容積率 | 70%/ 200% |
| 私道負担面積 | セットバック | 2.50㎡ | |
| 接道状況 | 三方 (北東側 私道4.0m 間口10.0m) (南西側 公道3.5m 間口10.0m) (北西側 公道4.5m 間口8.5m) | ||
| 地目 | 宅地 | 地勢 | |
| 土地の権利形態 | 開発面積 | ||
| 都市計画 | 市街化区域 | 用途地域 | 第一種住居地域 |
| その他法令上の制限 | 第二種高度地区、矢作地区計画区域内 | ||
| 国土法届出 | 不要 | 取引態様 | 仲介 |
| 現況 | 古家あり | 引渡し | 相談 |
| 設備条件 | |||
| その他条件 | |||
| 備考 | 南西側道路要セットバック:約2.5㎡ | ||
| 周辺の学校 | 岡崎市立矢作東小学校(約1,304m / 徒歩17分)、岡崎市立矢作中学校(約787m / 徒歩10分) | ||
| 物件番号 | 98111733 | ||
| 情報公開日 | 2026年4月14日 | 次回更新予定日 | 2026年4月28日 |
| 取引条件の有効期限 | 2026年4月28日 | ||
| 取扱い会社 |
株式会社西建 〒444-0943 愛知県岡崎市矢作町字八剱34-5 愛知県知事(1)第26160号 |
||
0564-73-2012
営業時間:09:00~18:00 / 定休日:日曜日
| 所在地 | 物件の住所を表示。(詳細住所は表示していない場合もある) | ||
|---|---|---|---|
| 交通 | 物件(部屋)の沿線駅・バス停を表示。(複数駅・バス停の利用が可能な場合は最大3件まで) | ||
| 間取り/詳細 | 数字は居室数を表示。LDKはそれぞれ「リビング」「ダイニング」「キッチン」、S(納戸)とは「納戸」「サービスルーム」「マルチルーム」「フリールーム」など建築基準法第28条に適合していないため、居室と認められない納戸その他の部分を表す。 | ||
| 価格 | 販売されている住戸の価格を表示。仲介手数料は含まない。 | ||
| 管理費 | 共同住宅の設備その他共用部分の維持および管理をするために必要な費用を表示。 | ||
| 修繕積立金 | 共用部分の修繕のために積立てる金額を表示。 | ||

売地
| 価格 |
値下げ:2025/11/06 2,190 万円 | ||
|---|---|---|---|
| 土地面積 | 202.84㎡ | 建築条件 | 無 |
| 土地坪数 | 61.35坪 | 坪単価 | 35.7万円 |
| 建ぺい率 | 60% | 容積率 | 200% |
| 住所 | 愛知県岡崎市矢作町字下川成 | ||
| 交通 |
名鉄名古屋本線「矢作橋」駅 徒歩11分
|
||
【外観】